Passa in Giunta Comunale l’ampio e importante progetto di riqualificazione dell’ex piscina ‘Nico Sapio’ di Multedo. La delibera è la numero 146 del 23 maggio 2019. Oggi pomeriggio, in Consiglio Comunale a Palazzo Tursi, l’assessore comunale ai Lavori Pubblici, Paolo Fanghella, ne ha dato conferma, rispondendo a un’interrogazione a risposta immediata (ex articolo 54) presentata dal consigliere del Partito Democratico, Mauro Avvenente.
L’esponente del centrosinistra, già presidente del Municipio VII Ponente durante la precedente legislatura, ha chiesto all’amministrazione chiarimenti e aggiornamenti, non solo sul progetto ma pure sulle tempistiche. Nei giorni scorsi, a Multedo, l’attuale presidente del Municipio Claudio Chiarotti aveva confermato l’esistenza del finanziamento di 4,8 milioni di euro per realizzare l’opera, ma aveva detto di essere in attesa di vedere e conoscere il progetto.
‘La Voce di Genova’ ne ha preso visione: si tratta, come annunciato nei mesi scorsi, di un futuro centro polifunzionale, con annessa area fitness, quindi non più di una piscina. “Sarà uno spazio che non esiste attualmente in tutta Genova - assicura Fanghella - e che potrà ospitare le gare agonistiche sino alla serie B. Sono convinto che avremo un fiore all’occhiello non solo per il Ponente cittadino, ma per tutta la città. Si tratta di uno dei progetti principali, sia come portata che come finanziamento, con cui si sono confrontati gli uffici tecnici comunali”.
Fanghella ne è molto fiero, perché la riqualificazione dell’ex piscina ‘Sapio’, un complesso oggi completamente abbandonato, ma in passato utilizzato anche da grandi campioni (una su tutte, la nuotatrice olimpionica Paola Cavallino), può davvero rappresentare un simbolo di grande concretezza non solo del suo assessorato ai Lavori Pubblici, ma di tutta l’amministrazione Bucci.
“Grazie alla possibilità di un ampliamento del 20% dei volumi - spiega Fanghella - potremo fare una sollevazione del tetto, e potendo contare su questo la struttura sarà omologata per gli eventi agonistici. La progettazione è definitiva, e speriamo di andare in gara il più presto possibile. Abbiamo dovuto superare qualche criticità relativa alle aree vicine: lo svincolo autostradale, il sottostante Rio Rostan, la Carmagnani come zona a rischio d’incidente rilevante. Si è creato, in sostanza, un triangolo, entro il quale ragionare in termini di progettazione. Una specie di gioco a incastro. Sarà un edificio con un costo energetico molto basso, quasi tendente allo zero. Moderno in tutti i sensi”.
L’assessore ai Lavori Pubblici si è anche soffermato sui finanziamenti: “Confermo che si tratta di 4,8 milioni di euro. Di cui quattro milioni derivanti dalla Regione Liguria, più un cofinanziamento di ottocentomila euro da parte del Comune. L’obiettivo è iniziare i lavori entro gennaio del 2020, in modo da non perdere lo stanziamento regionale, che è appunto riferito al prossimo anno”.
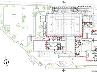
La relazione del progetto è molto dettagliata: “Ai fini della trasformazione del fabbricato per la nuova destinazione sportiva - si legge - si prevede l’eliminazione della vasca natatoria, della struttura di copertura realizzata con un cassettonato in cemento armato solidale con le travi principali, delle gradinate esistenti e delle tramezzature interne incompatibili con il nuovo layout distributivo previsto. La nuova copertura, volta a concretizzare la maggior altezza interna richiesta per l’impianto, sarà sostenuta da una struttura in legno lamellare curvilinea appoggiata sulle nuove travature principali, anch’esse in legno lamellare, poste in opera sui pilastri esistenti. La composizione del manto di copertura, esplicitata nelle relazioni specialistiche, prevedrà idoneo strato coibente debitamente supportato ed esteriormente rivestito in lastre di lamiera grecata su cui saranno ancorati i pannelli dell’impianto fotovoltaico”.
Inoltre, “sullo spazio liberato dalla vasca e dalle gradinate demolite sarà realizzato il nuovo solaio del campo da gioco, pavimentato con i materiali tecnici omologati per la pallacanestro, la pallavolo e il calcio indoor a 5. Gli spazi per il pubblico saranno realizzati all’interno del nuovo volume esterno previsto sul prospetto sud con struttura portante in cemento armato e copertura sostenuta da travetti in legno lamellare con manto analogo a quello dell’area di gioco, con finitura esterna in lamiera grecata. Qui saranno realizzati gli spalti per il pubblico e i nuovi servizi igienici. Le superfici sottostanti saranno destinate a ospitare elementi degli impianti tecnologici. Agli spalti si accederà dal nuovo atrio di ingresso per gli spettatori, edificato in prossimità del cancello carrabile lato sud-ovest, che permetterà di raggiungere sia il locale bar sia gli uffici delle società sportive insediate. L’ala nord ovest dell’impianto sarà destinata ai locali accessori del campo principale con la realizzazione degli spogliatoi per gli atleti, per i giudici e per gli istruttori, delle superfici di deposito e del locale di primo soccorso. L’ala nord est, invece, è stata ipotizzata come impianto sportivo separato, con una propria area per l’attività sportiva (ginnastica, fitness ecc.), propri spogliatoi per atleti e addetti con sala medica, uffici e locali di deposito indipendenti”.
Quanto all’esterno, “a completamento dell’intervento di riqualificazione del complesso sportivo è prevista la sistemazione delle aree esterne con la sostituzione del manto in asfalto delle aree carrabili con una pavimentazione in masselli di calcestruzzo drenante posati su sabbia e il tracciamento dei nuovi posti auto, oltre alle opere impiantistiche di illuminazione e presidio previste dalla relazione specialistica. La sistemazione delle aree a verde di contorno, delle aiuole e delle cancellate consentirà di eliminare il degrado attuale e restituirà un importante spazio urbano alla cittadinanza”.







